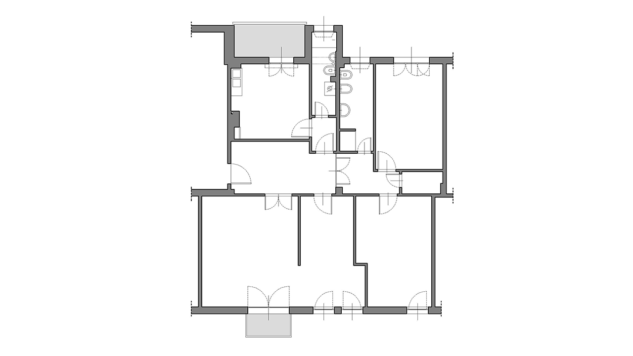
L’appartamento è situato al sesto piano di un grande fabbricato ACER con doppio affaccio: cortile interno a nord e Piazza della Resistenza a sud con vista sul profilo dei colli bolognesi e San Luca. L’obiettivo di ottenere un ampliamento percettivo dello spazio è stato ottenuto cambiandone completamente l’assetto distributivo: tutto il fronte sud è stato aperto per creare una galleria in cui funzioni ed episodi plastici conducano il percorso in un alternarsi di continuità e trasformazione, cadenzati dal ritmo delle quattro bucature esistenti. La composizione architettonica definisce gli arredi e il disegno dell’illuminazione: i soffitti si animano come vettori, così come gli apparecchi luminosi guidando l’occhio in uno spazio in cui i fuochi prospettici cambiano continuamente gerarchia. Il volume del soggiorno si apre con la zona relax che ha come fuoco generatore la grande parete libreria, realizzata con lame di cartongesso che contengono una lampada di plexiglass, e con una panca che riprende l’andamento del controsoffitto e che funge da porta accessori, tv e da seduta; lo spazio diviene più complesso con l’episodio centrale, che determina per differenza anche la zona pranzo, che dal soffitto fuoriesce con una scultura luminosa che trasformandosi sottolinea lo spazio musica e relax (con un arredo che contiene il pianoforte) e conduce verso la cucina che sul fondo fa da contrappunto alla parete libreria-tv, mostrandosi e mimetizzandosi. La porzione più privata è stata concepita come composta da 2 unità distinte: una zona padronale come se fosse un’entità autonoma, completa di ingresso, bagno, zona notte e studiolo (ricavato annettendo la loggia con vetrata a tutta parete); una zona con bagno accessibile dal disimpegno attrezzato e una camera.Dati Progetto
Intervento:
Casa R18 – Ristrutturazione di appartamento
Luogo:
Piazza Resistenza – Bologna
Progettisti:
AP+a STUDIO
Committente:
Privato
Anno:
2018
Il progetto
Arredi su Progetto
Parete soggiorno
Pianoforte
Armadio a muro
Armadio padronale
Cameretta
Armadio cameretta
Casa R18




































